Редукторы
Мотор редукторы
Частотные преобразователи
Промышленные вентиляторы
Электротали
Крановые электродвигатели
Назначение и область применения
Редукторы предназначены для использования в приводах различных механизмов для изменения крутящих моментов и частоты вращения.
Редукторы допускают применение в следующих условиях:
- работа в повторно-кратковременных режимах, т.е. при переменных нагрузках с периодическими остановками, нагрузка одного направления и реверсивная;
- вращение валов в любую сторону;
- при температуре окружающей среды от -40°С до +50С в неагрессивной среде при запыленности воздуха не более 10мг/м³;
- климатические исполнения У1, У2, У3, УХЛ-4, Т1, Т2, Т3 и О4 по ГОСТ 15150.

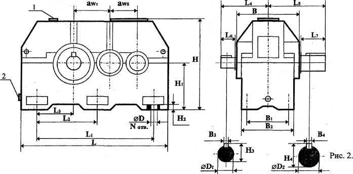
|
Типоразмер |
aw6 |
awT |
N |
L |
L1 |
L2 |
L3 |
L4 |
L5 |
L6 |
L7 |
H |
H1 |
H2 |
|
1Ц2Н-450 |
280 |
450 |
6 |
1460 |
1060 |
530 |
260 |
500 |
650 |
170 |
300 |
955 |
475 |
50 |
|
1Ц2Н-500 |
315 |
500 |
6 |
1680 |
1220 |
516 |
360 |
530 |
690 |
1055 |
530 |
60 |
|
Типоразмер |
H3 |
H4 |
D |
D1 |
D2 |
В |
В1 |
В2 |
B3 |
B4 |
|
1Ц2Н-450 |
85 |
169 |
35 |
80m6 |
160m6 |
630 |
515 |
590 |
22 |
40 |
|
1Ц2Н-500 |
95 |
190 |
42 |
90m6 |
180m6 |
700 |
580 |
560 |
25 |
45 |
В современном промышленном производстве, где точность, надежность и долговечность оборудования играют ключевую роль, выбор правильных компонентов является критически важным. Среди широкого спектра механических передач особое место занимают цилиндрические редукторы, предназначенные для изменения крутящего момента и угловой скорости. В этой статье мы подробно рассмотрим две популярные модели двухступенчатых горизонтальных цилиндрических редукторов – Ц2Н-450 и Ц2Н-500, их особенности, преимущества и области применения.
Цилиндрический редуктор – это механическое устройство, состоящее из зубчатых колес с цилиндрическими зубьями, заключенных в общий корпус. Его основная функция – понижение угловой скорости входного вала и, соответственно, увеличение крутящего момента на выходном валу. Двухступенчатые редукторы, как Ц2Н-450 и Ц2Н-500, имеют две пары зубчатых колес, что позволяет достигать более высоких передаточных чисел по сравнению с одноступенчатыми моделями.
Редукторы серий Ц2Н-450 и Ц2Н-500 относятся к классу двухступенчатых горизонтальных цилиндрических редукторов. Буква "Н" в названии указывает на зацепление Новикова, которое является одним из ключевых преимуществ этих моделей. Зацепление Новикова характеризуется выпукло-вогнутым профилем зубьев, что обеспечивает:
Основные конструктивные особенности:
Ц2Н-450 – это мощный и надежный редуктор, предназначенный для работы в составе приводов машин и механизмов, требующих значительного крутящего момента. Число "450" в названии обычно указывает на межосевое расстояние тихоходной ступени в миллиметрах, что является одним из ключевых параметров, определяющих габариты и мощность редуктора.
Ключевые характеристики Ц2Н-450:
Области применения Ц2Н-450: